Godrej Woods

By Ankit Goel

PHASE 1 SECTOR 43, Noida

RERA ID: DLRERA2019P0003
₹1.77 Cr - ₹10.89 Cr

Flat | Possession: 30 Jul 2026

Contact Developer

Total Units
430

Project Size
3.97 acre

Possession Date
30 Jul 2026

Total Towers
3
Project Summary
Project Status
Project Status
Under Construction
Possession
Possession
Under Construction
Property Type
Property Type
Flat
More about Godrej Woods

Godrej Woods Phase 1 is a luxurious, nature-themed residential development located in the prime Sect ... Read more

About Godrej Woods
Godrej Woods Phase 1 is a luxurious, nature-themed residential development located in the prime Sector 43 of Noida. Part of the larger 11-acre 'Godrej Woods' project, Phase 1 offers a unique lifestyle that blends urban convenience with the serenity of a private forest, featuring over 600 trees throughout the development Total Area: Phase 1 spans approximately 3.97 acres (around 16,055 square meters) of the total project land.
Total Tower (3)
Tower Name Lifts Floors Parking Spaces Flat
Tower 1 4 34 0 143
Tower 2 4 34 0 143
Tower 3 4 34 0 143

BHK Configuration (4)
Type Bedrooms Bathrooms Balconies Estimated Price
1 BHK - - - -
2 BHK 2 1 1 ₹1.77 Cr
3 BHK 3 2 1 ₹2.52 Cr
4 BHK 4 3 2 ₹4.07 Cr
Amenities
Power Backup
Security
Swimming Pool
Gym
Parking
Walking Tracks
Landscaped Gardens
Elevator
Children's Playground
Visitor Parking
Amenities
Power Backup
Security
Swimming Pool
Gym
Parking
Walking Tracks
Landscaped Gardens
Elevator
Children's Playground
Visitor Parking
Reserved Parking
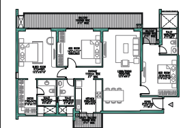
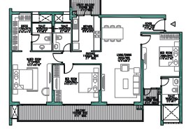
Master Layout (5)
Layout Image
Layout Image
Layout Image
Nearby Landmarks
Select a category to view nearby places...
Our Customer Review
Top Advertisers
Builder
Vrindavan
Noida
Call Now
Builder
Harsh Gupta
Sector 51, Noida
Call Now
Videos Review
General
Simplify Your Property Journey with Experts

Experience hassle-free property deals with TyTil.com. Get expert guidance & personalized solutions for all your real estate needs.

General
Delhi Real Estate Investment

Explore Delhi real estate investment with top opportunities, key projects, & expert market insights to make smarter property decisions.

General
One Platform for All Your Property Needs

TyTil makes property search simple and fast. Explore verified listings, compare options, and find your dream home with ease—all in...

Recent blog

Looking for this project in Sector 51, Noida

+91
Contact Us
Write Your Review
+91