Pramukh Satva

By Vikash Patel

Vesu Canal Road, Surat

RERA ID: RAA13475/080524/311229
₹1.02 Cr - ₹1.28 Cr

Flat | Possession: 29 Dec 2029

Contact Developer

Total Units
192

Project Size
2.3 acre

Possession Date
29 Dec 2029

Total Towers
4
Project Summary
Project Status
Project Status
Under Construction
Possession
Possession
Under Construction
Property Type
Property Type
Flat
More about Pramukh Satva

Pramukh Satva is a well‑planned residential development located in the rapidly growing and well‑conn ... Read more

About Pramukh Satva
Pramukh Satva is a well‑planned residential development located in the rapidly growing and well‑connected Vesu locality of Surat, Gujarat. Registered under the Gujarat Real Estate Regulatory Authority (SUDA / Surat Municipal Corporation) with RERA No. PR/GJ/SURAT/SURAT CITY/Surat Municipal Corporation/RAA13475/080524/311229, this project is designed to offer comfortable and modern homes for families looking for quality living in an urban setting.
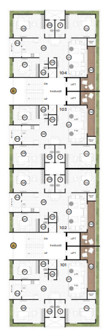
Total Tower (4)
Tower Name Lifts Floors Parking Spaces Flat
Tower 1 2 12 0 48
Tower 2 2 12 0 48
Tower 3 2 12 0 48
Tower 4 2 12 0 48

BHK Configuration (3)
Type Bedrooms Bathrooms Balconies Estimated Price
1 BHK - - - -
2 BHK - - - -
3 BHK 3 2 2 ₹1.02 Cr
Amenities
Power Backup
Security
Swimming Pool
Gym
Parking
Walking Tracks
Elevator
Clubhouse
Children's Playground
Visitor Parking
Amenities
Power Backup
Security
Swimming Pool
Gym
Parking
Walking Tracks
Elevator
Clubhouse
Children's Playground
Visitor Parking
Reserved Parking
Master Layout (5)
Layout Image
Layout Image
Layout Image
Nearby Landmarks
Select a category to view nearby places...
Our Customer Review
Videos Review
General
Simplify Your Property Journey with Experts

Experience hassle-free property deals with TyTil.com. Get expert guidance & personalized solutions for all your real estate needs.

General
Delhi Real Estate Investment

Explore Delhi real estate investment with top opportunities, key projects, & expert market insights to make smarter property decisions.

General
One Platform for All Your Property Needs

TyTil makes property search simple and fast. Explore verified listings, compare options, and find your dream home with ease—all in...

Recent blog

Looking for this project in Vesu Canal Road, Surat

+91
Contact Us
Write Your Review
+91