Shivalik Shilp

By Ajay Parmar

Ambli, Ahmedabad

RERA ID: PR/GJ/AHMEDABAD/AHMEDABAD CITY/AUDA/CAA10688/270922
₹1.02 Cr - ₹2.08 Cr

Flat | Possession: 31 Mar 2027

Contact Developer

Total Units
400

Project Size
1 acre

Possession Date
31 Mar 2027

Total Towers
1
Project Summary
Project Status
Project Status
Under Construction
Possession
Possession
Under Construction
Property Type
Property Type
Flat
More about Shivalik Shilp

Shivalik Shilp is a premium mixed-use development project located in the Ambli–SG Highway area of Ah ... Read more

About Shivalik Shilp
Shivalik Shilp is a premium mixed-use development project located in the Ambli–SG Highway area of Ahmedabad, Gujarat. Developed by the reputed Shivalik Group, this project is designed to offer a blend of luxury residential living and modern commercial spaces in one integrated high-rise tower. The project is strategically positioned in one of Ahmedabad’s fastest-growing and most upscale real estate corridors, making it attractive for both end-users and investors.The development is a single high-rise tower featuring contemporary architecture with modern glass façade design and efficient space planning. It includes both residential apartments and commercial office/retail spaces, making it a live-work-style environment. The residential segment primarily offers spacious 3 BHK and 4 BHK luxury apartments, designed for premium urban lifestyles with large living areas, balconies, and high-quality interior specifications.
Total Tower (1)
Tower Name Lifts Floors Parking Spaces Flat
Tower 1 4 21 0 400

BHK Configuration (4)
Type Bedrooms Bathrooms Balconies Estimated Price
1 BHK - - - -
2 BHK - - - -
3 BHK 3 2 2 ₹1.02 Cr
4 BHK 4 3 3 ₹2.08 Cr
Amenities
Power Backup
Security
Swimming Pool
Parking
Walking Tracks
Elevator
Children's Playground
Amenities
Power Backup
Security
Swimming Pool
Parking
Walking Tracks
Elevator
Children's Playground
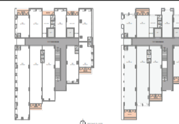
Master Layout (3)
Layout Image
Layout Image
Layout Image
Nearby Landmarks
Select a category to view nearby places...
Our Customer Review
Top Advertisers
Builder
Ambika
Rupam Society, Ahmedabad
Call Now
Videos Review
General
Simplify Your Property Journey with Experts

Experience hassle-free property deals with TyTil.com. Get expert guidance & personalized solutions for all your real estate needs.

General
Delhi Real Estate Investment

Explore Delhi real estate investment with top opportunities, key projects, & expert market insights to make smarter property decisions.

General
One Platform for All Your Property Needs

TyTil makes property search simple and fast. Explore verified listings, compare options, and find your dream home with ease—all in...

Recent blog

Looking for this project in Rupam Society, Ahmedabad

+91
Contact Us
Write Your Review
+91